府中店の特選物件です。
カレンダー
| 02 | 2026/03 | 04 |
| S | M | T | W | T | F | S |
|---|---|---|---|---|---|---|
| 1 | 2 | 3 | 4 | 5 | 6 | 7 |
| 8 | 9 | 10 | 11 | 12 | 13 | 14 |
| 15 | 16 | 17 | 18 | 19 | 20 | 21 |
| 22 | 23 | 24 | 25 | 26 | 27 | 28 |
| 29 | 30 | 31 |
カテゴリー
フリーエリア
最新TB
プロフィール
HN:
kaimaster
性別:
非公開
ブログ内検索
P R
×
[PR]上記の広告は3ヶ月以上新規記事投稿のないブログに表示されています。新しい記事を書く事で広告が消えます。
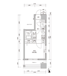
物件詳細
所在地 府中市小柳町2丁目
最寄駅 京王線 多磨霊園駅 徒歩5分
西武多摩川線 白糸台駅 徒歩13分
賃料 132000円
共益費 5000円
敷金 1ヶ月
礼金 1ヶ月
間取り 2LDK


こちらの物件は2010年に完成しました築浅物件でございます!
とても広々した間取りに誰にでも自慢できるようなリビング★
カウンター式のキッチンで、充実のシステムキッチンとなっております!
もちろん築浅ですので、どれをとってもピカピカで、設備も充実しております!!
オートロック付きマンションで防犯面も安心してお住まいいただけます。
一度ご内見頂く価値がございますので
是非ご案内させて頂きたく思います!
それでは最後に室内写真です☆









所在地 府中市小柳町2丁目
最寄駅 京王線 多磨霊園駅 徒歩5分
西武多摩川線 白糸台駅 徒歩13分
賃料 132000円
共益費 5000円
敷金 1ヶ月
礼金 1ヶ月
間取り 2LDK
こちらの物件は2010年に完成しました築浅物件でございます!
とても広々した間取りに誰にでも自慢できるようなリビング★
カウンター式のキッチンで、充実のシステムキッチンとなっております!
もちろん築浅ですので、どれをとってもピカピカで、設備も充実しております!!
オートロック付きマンションで防犯面も安心してお住まいいただけます。
一度ご内見頂く価値がございますので
是非ご案内させて頂きたく思います!
それでは最後に室内写真です☆
PR
【 物 件 詳 細 】
☐所在地 府中市美好町3丁目
☐交通 京王線・南武線 分倍河原駅 徒歩6分
☐賃料 64000円
☐管理費 4000円
☐敷金 1ヶ月
☐礼金 1ヶ月
☐築年数 2012年3月
☐間取り 1K(26.08㎡)
セコムホームセキュリティ全部屋無料標準装備
【 間 取 り ・ 外 観 】


下記がイメージになります!!

【 設 備 】
☐エアコン
☐2口ガスキッチン
☐独立洗面台
☐浴室乾燥
☐ウォシュレット
☐TVモニター付きインターホン
☐バイク置き場(月額2000円250CCまで)
【 室 内 】




こちらの物件は室内の設備がとてもオシャレになっております。
洗面台も、ホテルなどにありそうなオシャレな物お使用しております。
キッチンはガスキッチン2口で自炊もしやすく、
シンクも広めにできておりますので、
後かたづかも楽にする事が出来ます!!
お部屋は8帖おフローリングタイプになっており
クローゼットもありますので、お部屋を広くお使いいただけます!!
物件周辺は閑静な住宅街になっており、
住環境も良好です!!
住環境・物件共にとてもオススメになっております。
☐所在地 府中市美好町3丁目
☐交通 京王線・南武線 分倍河原駅 徒歩6分
☐賃料 64000円
☐管理費 4000円
☐敷金 1ヶ月
☐礼金 1ヶ月
☐築年数 2012年3月
☐間取り 1K(26.08㎡)
セコムホームセキュリティ全部屋無料標準装備
【 間 取 り ・ 外 観 】
下記がイメージになります!!
【 設 備 】
☐エアコン
☐2口ガスキッチン
☐独立洗面台
☐浴室乾燥
☐ウォシュレット
☐TVモニター付きインターホン
☐バイク置き場(月額2000円250CCまで)
【 室 内 】
こちらの物件は室内の設備がとてもオシャレになっております。
洗面台も、ホテルなどにありそうなオシャレな物お使用しております。
キッチンはガスキッチン2口で自炊もしやすく、
シンクも広めにできておりますので、
後かたづかも楽にする事が出来ます!!
お部屋は8帖おフローリングタイプになっており
クローゼットもありますので、お部屋を広くお使いいただけます!!
物件周辺は閑静な住宅街になっており、
住環境も良好です!!
住環境・物件共にとてもオススメになっております。
【 物 件 詳 細 】
所在地 府中市多磨町1丁目
交通 西武多摩川線 多磨駅 徒歩5分
賃料 48000円
管理費 2000円
敷金 1ヶ月
礼金 2ヶ月
※賃貸保証会社を使って頂く契約になります。
(賃料+管理費の合計の30%が2年に一回かかります)
構造 木造
【 間 取 り ・ 外 観 】

所在地 府中市多磨町1丁目
交通 西武多摩川線 多磨駅 徒歩5分
賃料 48000円
管理費 2000円
敷金 1ヶ月
礼金 2ヶ月
※賃貸保証会社を使って頂く契約になります。
(賃料+管理費の合計の30%が2年に一回かかります)
構造 木造
【 間 取 り ・ 外 観 】
【 物 件 詳 細 】
☐所在地 府中市緑町2丁目
☐交通 京王線 府中駅 11分
☐賃料 110000円
☐管理費 3000円
☐敷金 1ヶ月
☐礼金 0ヶ月
☐築年数 1992年
【 外 観 ・ 間 取 り 】


こちらの物件は南向きで日当りも良好です!!
閑静な住宅街になり、住環境も良好です。
【 室 内 】



室内はとてもキレイです!!
キッチンはガスキッチンで、シンクや料理スペースも広く、
お料理好きの方にはオススメ!!
お部屋のバリエーションも豊富なので、用途に合わせて
お使い下さい。


浴室はゆったりした造りになっています☆
ゆっくりお風呂に浸かって、一日の疲れを取って下さい。
トイレも広々としてます!!


洗濯機置場は室内にあります。
洗面台も独立型です!!
住閑居も良く、全室角部屋のオススメ物件です!!
お問い合せいただきました物件の最寄駅の府中駅は特急停車駅ということもあり、
色々なお店が揃っております。


駅前には『くるる』というショッピングセンターがあります。
映画館(TOHOシネマズ)が入っており、レイトショーなどもやっております。
他にも衣類用品・飲食店・マツモトキヨシ・トイザラス・魚屋さん・八百屋さん・輸入食品・天然酵母のパン屋さんなどが入っておりますので、日常品は、全てこちらで揃えて頂くこともできます。
駅前には、伊勢丹などもありデパ地下は、大変人気が高く是非一度足を運んでみてください。
他にも伊勢丹と隣接しているフォーリス(食料品やユニクロ・衣類用品・生活雑貨・飲食店などが入っております)・京王アートマン(生活雑貨など品揃え豊かです)・ツタヤ等も揃っていてお買い物も便利です。


府中市は、治安が良く、緑が多い街でも有名で子育て環境なども大変充実しております。駅から徒歩5分の所には府中市の施設の図書館や文化センターがあり、
紙芝居や本はもちろん、CDやDVDなども無料で借りることができます。
近くには府中公園があり、春は桜で満開、お散歩や、お子様の遊び場としても
利用されている大きな公園です。

最近はスポーツジムに通われてる方も多いと思いますが、
府中駅前には、ジムが4店舗あります。
『GOLD‘S GYM.』(筋肉トレーニングの機会が豊富に揃っており、筋肉トレーニングを中心にしたい方にお勧めのジムです)『コナミスポーツ』(筋 肉トレーニング以外にもお風呂で疲れを取りたいお客様にお勧めのジムです。8種類以上のお風呂や露天風呂・サウナーがあります)『NAS』(夜のみのコー スなどもございますので、お仕事帰り少しだけ汗を流したいというお客様にもお勧めです。)『セントラルフィットネスクラブ』(府中駅のジムの中でも低料金 になっておりますので、ジムに行きたいけど節約をしたいという方にお薦めのジムです)
ご予算・立地・設備など色々選んで頂けると思います。
府中の前の駅前の通りには日本国指定の天然記念物の並木である、欅の木が全長500mに渡り約150本もあり、大変綺麗な通りになっております。町の中を歩いていると色々綺麗で癒される場所も沢山あります。
5月のゴールデンウイークには、大國魂神社で開催される祭りの中でも一番大きい暗闇祭は神輿が8基出ており、毎年盛り上がっており、屋台なども沢山並びます。


府中市は住環境・治安共にお勧めになっております。
是非一度住んでみてください。
☐所在地 府中市緑町2丁目
☐交通 京王線 府中駅 11分
☐賃料 110000円
☐管理費 3000円
☐敷金 1ヶ月
☐礼金 0ヶ月
☐築年数 1992年
【 外 観 ・ 間 取 り 】
こちらの物件は南向きで日当りも良好です!!
閑静な住宅街になり、住環境も良好です。
【 室 内 】
室内はとてもキレイです!!
キッチンはガスキッチンで、シンクや料理スペースも広く、
お料理好きの方にはオススメ!!
お部屋のバリエーションも豊富なので、用途に合わせて
お使い下さい。
浴室はゆったりした造りになっています☆
ゆっくりお風呂に浸かって、一日の疲れを取って下さい。
トイレも広々としてます!!
洗濯機置場は室内にあります。
洗面台も独立型です!!
住閑居も良く、全室角部屋のオススメ物件です!!
お問い合せいただきました物件の最寄駅の府中駅は特急停車駅ということもあり、
色々なお店が揃っております。
駅前には『くるる』というショッピングセンターがあります。
映画館(TOHOシネマズ)が入っており、レイトショーなどもやっております。
他にも衣類用品・飲食店・マツモトキヨシ・トイザラス・魚屋さん・八百屋さん・輸入食品・天然酵母のパン屋さんなどが入っておりますので、日常品は、全てこちらで揃えて頂くこともできます。
駅前には、伊勢丹などもありデパ地下は、大変人気が高く是非一度足を運んでみてください。
他にも伊勢丹と隣接しているフォーリス(食料品やユニクロ・衣類用品・生活雑貨・飲食店などが入っております)・京王アートマン(生活雑貨など品揃え豊かです)・ツタヤ等も揃っていてお買い物も便利です。
府中市は、治安が良く、緑が多い街でも有名で子育て環境なども大変充実しております。駅から徒歩5分の所には府中市の施設の図書館や文化センターがあり、
紙芝居や本はもちろん、CDやDVDなども無料で借りることができます。
近くには府中公園があり、春は桜で満開、お散歩や、お子様の遊び場としても
利用されている大きな公園です。
最近はスポーツジムに通われてる方も多いと思いますが、
府中駅前には、ジムが4店舗あります。
『GOLD‘S GYM.』(筋肉トレーニングの機会が豊富に揃っており、筋肉トレーニングを中心にしたい方にお勧めのジムです)『コナミスポーツ』(筋 肉トレーニング以外にもお風呂で疲れを取りたいお客様にお勧めのジムです。8種類以上のお風呂や露天風呂・サウナーがあります)『NAS』(夜のみのコー スなどもございますので、お仕事帰り少しだけ汗を流したいというお客様にもお勧めです。)『セントラルフィットネスクラブ』(府中駅のジムの中でも低料金 になっておりますので、ジムに行きたいけど節約をしたいという方にお薦めのジムです)
ご予算・立地・設備など色々選んで頂けると思います。
府中の前の駅前の通りには日本国指定の天然記念物の並木である、欅の木が全長500mに渡り約150本もあり、大変綺麗な通りになっております。町の中を歩いていると色々綺麗で癒される場所も沢山あります。
5月のゴールデンウイークには、大國魂神社で開催される祭りの中でも一番大きい暗闇祭は神輿が8基出ており、毎年盛り上がっており、屋台なども沢山並びます。
府中市は住環境・治安共にお勧めになっております。
是非一度住んでみてください。
【 物 件 詳 細 】
☐所在地 府中市府中町2丁目
☐交通 京王線 府中駅 徒歩2分
☐賃料 68000円
☐管理費 9000円
☐敷金 1ヶ月
☐礼金 1ヶ月
☐間取り 1K
☐築年数 2007年


こちらの物件は分譲賃貸マンションでございます☆
最寄駅の京王線「府中駅」から徒歩3分ととても近い場所にあり
交通の便、生活面で大変便利な場所でございます!
物件に関しましてもTVモニター付きオートロックや宅配ボックス
お部屋の中は、独立洗面台や浴室乾燥機機能付きで
至れり尽くせりとは、まさにこのことじゃないでしょうか(●^o^●)
7帖以上あり、設備も充実してこの立地☆
一度と言わず二度までも実際に見て頂きたく思います☆
それでは最後に室内写真です☆









11階建ての高層マンションです(●^o^●)
☐所在地 府中市府中町2丁目
☐交通 京王線 府中駅 徒歩2分
☐賃料 68000円
☐管理費 9000円
☐敷金 1ヶ月
☐礼金 1ヶ月
☐間取り 1K
☐築年数 2007年
こちらの物件は分譲賃貸マンションでございます☆
最寄駅の京王線「府中駅」から徒歩3分ととても近い場所にあり
交通の便、生活面で大変便利な場所でございます!
物件に関しましてもTVモニター付きオートロックや宅配ボックス
お部屋の中は、独立洗面台や浴室乾燥機機能付きで
至れり尽くせりとは、まさにこのことじゃないでしょうか(●^o^●)
7帖以上あり、設備も充実してこの立地☆
一度と言わず二度までも実際に見て頂きたく思います☆
それでは最後に室内写真です☆
11階建ての高層マンションです(●^o^●)