府中店の特選物件です。
カレンダー
| 10 | 2025/11 | 12 |
| S | M | T | W | T | F | S |
|---|---|---|---|---|---|---|
| 1 | ||||||
| 2 | 3 | 4 | 5 | 6 | 7 | 8 |
| 9 | 10 | 11 | 12 | 13 | 14 | 15 |
| 16 | 17 | 18 | 19 | 20 | 21 | 22 |
| 23 | 24 | 25 | 26 | 27 | 28 | 29 |
| 30 |
カテゴリー
フリーエリア
最新TB
プロフィール
HN:
kaimaster
性別:
非公開
ブログ内検索
P R
×
[PR]上記の広告は3ヶ月以上新規記事投稿のないブログに表示されています。新しい記事を書く事で広告が消えます。
物件詳細
所在地 府中市片町1丁目
最寄駅 京王線 府中駅 徒歩10分
京王線、南武線 分倍河原駅 徒歩5分
武蔵野線 府中本町駅 徒歩13分
賃料 56,000円
共益費 6,000円
敷金 1ヶ月
礼金 1ヶ月


こちらの物件は、府中駅と、分倍河原駅が2駅利用可能の
場所に建っている建物です!!
買い物は、府中駅、通勤は、分倍河原駅など分けて使う事が出来ますので
非常に便利かと思います。
室内もグレードが大変良く設備も充実しております。
お料理好きの方は、必見☆
1Kですがガスコンロでスムーズに調理する事が出来ます♪
南向きで目の前に高い建物も有りませんので、日当たり抜群です★
次にご紹介させて頂いた物件の最寄駅、分倍河原駅の
ご紹介をさせて頂きます。
お問い合せ頂いた物件の最寄りの駅は準特急停車駅の分倍河原駅です。
JR南武線も乗り入れていますので、2路線利用可能で、
武蔵野線が乗り入れている府中本町駅も徒歩10分で行くことができます。
分倍河原駅より西側へ徒歩14分程度でお隣の中河原駅、東側へ14分程度で
府中駅と、お店充実の両駅前施設も利用可能でとても生活便利です。
駅より北側には大型電気店の「ケーズデンキ」、「コジマ電機」があり、大型
ホームセンターの「島忠」もありますので生活雑貨に関しては常に安く手に入
る便利さは魅力です。
駅の南側には昨年3月にオープンした商業施設のミナノがあります。
ミナノの中には深夜1時まで営業しているスーパーのサミットや31アイスク
リーム、ブックオフ、100円ショップなどの様々なお店があります。
緑豊かな地域でお子様のいるご家庭には「郷土の森交通公園」と言う車を気に
しなくても良い大型の公園もあります。
全面芝生の広大な敷地で週末はお弁当持参のご家族が多く、大きな噴水のある
池で錦鯉や大きな亀も鑑賞できる癒しのスポットです。
この敷地内に夏は市民プールがあり、流れるプールが好評で大型の滑り台は特
に人気があります。
この他、釣り堀、かなり本格的なプラネタリウム、ゴーカートと、公園部分に
は遊具が豊富で大変人気があります。
本物の機関車も展示されています。
公園の名前にもなっている「郷土の森」は意図的に作った散歩コースで公園部
分より西側に位置します。
四季に応じた草花が鑑賞でき春には、梅まつり・さくら祭り、季節によって菖
蒲の鑑賞やアジサイの鑑賞。府中市の歴史記念館にもなっているので復元され
た市役所庁舎や小学校も見ることができます。
夏には蛍が鑑賞できる「新田川緑道」もあり癒されます。
多摩川も近く、河川敷の公園もあり地域全体が穏やかな感じです。
週末やお休みの日にはのんびりとした雰囲気で過ごしたいという方にはお勧め
の地域です。
【物件写真】









所在地 府中市片町1丁目
最寄駅 京王線 府中駅 徒歩10分
京王線、南武線 分倍河原駅 徒歩5分
武蔵野線 府中本町駅 徒歩13分
賃料 56,000円
共益費 6,000円
敷金 1ヶ月
礼金 1ヶ月
こちらの物件は、府中駅と、分倍河原駅が2駅利用可能の
場所に建っている建物です!!
買い物は、府中駅、通勤は、分倍河原駅など分けて使う事が出来ますので
非常に便利かと思います。
室内もグレードが大変良く設備も充実しております。
お料理好きの方は、必見☆
1Kですがガスコンロでスムーズに調理する事が出来ます♪
南向きで目の前に高い建物も有りませんので、日当たり抜群です★
次にご紹介させて頂いた物件の最寄駅、分倍河原駅の
ご紹介をさせて頂きます。
お問い合せ頂いた物件の最寄りの駅は準特急停車駅の分倍河原駅です。
JR南武線も乗り入れていますので、2路線利用可能で、
武蔵野線が乗り入れている府中本町駅も徒歩10分で行くことができます。
分倍河原駅より西側へ徒歩14分程度でお隣の中河原駅、東側へ14分程度で
府中駅と、お店充実の両駅前施設も利用可能でとても生活便利です。
駅より北側には大型電気店の「ケーズデンキ」、「コジマ電機」があり、大型
ホームセンターの「島忠」もありますので生活雑貨に関しては常に安く手に入
る便利さは魅力です。
駅の南側には昨年3月にオープンした商業施設のミナノがあります。
ミナノの中には深夜1時まで営業しているスーパーのサミットや31アイスク
リーム、ブックオフ、100円ショップなどの様々なお店があります。
緑豊かな地域でお子様のいるご家庭には「郷土の森交通公園」と言う車を気に
しなくても良い大型の公園もあります。
全面芝生の広大な敷地で週末はお弁当持参のご家族が多く、大きな噴水のある
池で錦鯉や大きな亀も鑑賞できる癒しのスポットです。
この敷地内に夏は市民プールがあり、流れるプールが好評で大型の滑り台は特
に人気があります。
この他、釣り堀、かなり本格的なプラネタリウム、ゴーカートと、公園部分に
は遊具が豊富で大変人気があります。
本物の機関車も展示されています。
公園の名前にもなっている「郷土の森」は意図的に作った散歩コースで公園部
分より西側に位置します。
四季に応じた草花が鑑賞でき春には、梅まつり・さくら祭り、季節によって菖
蒲の鑑賞やアジサイの鑑賞。府中市の歴史記念館にもなっているので復元され
た市役所庁舎や小学校も見ることができます。
夏には蛍が鑑賞できる「新田川緑道」もあり癒されます。
多摩川も近く、河川敷の公園もあり地域全体が穏やかな感じです。
週末やお休みの日にはのんびりとした雰囲気で過ごしたいという方にはお勧め
の地域です。
【物件写真】
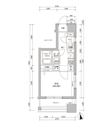
【 物 件 詳 細 】
☐所在地 府中市府中町2丁目
☐交通 京王線 府中駅 徒歩2分
☐賃料 68000円
☐管理費 9000円
☐敷金 1ヶ月
☐礼金 1ヶ月
☐間取り 1K
☐築年数 2007年


こちらの物件は分譲賃貸マンションでございます☆
最寄駅の京王線「府中駅」から徒歩3分ととても近い場所にあり
交通の便、生活面で大変便利な場所でございます!
物件に関しましてもTVモニター付きオートロックや宅配ボックス
お部屋の中は、独立洗面台や浴室乾燥機機能付きで
至れり尽くせりとは、まさにこのことじゃないでしょうか(●^o^●)
7帖以上あり、設備も充実してこの立地☆
一度と言わず二度までも実際に見て頂きたく思います☆
それでは最後に室内写真です☆









11階建ての高層マンションです(●^o^●)
☐所在地 府中市府中町2丁目
☐交通 京王線 府中駅 徒歩2分
☐賃料 68000円
☐管理費 9000円
☐敷金 1ヶ月
☐礼金 1ヶ月
☐間取り 1K
☐築年数 2007年
こちらの物件は分譲賃貸マンションでございます☆
最寄駅の京王線「府中駅」から徒歩3分ととても近い場所にあり
交通の便、生活面で大変便利な場所でございます!
物件に関しましてもTVモニター付きオートロックや宅配ボックス
お部屋の中は、独立洗面台や浴室乾燥機機能付きで
至れり尽くせりとは、まさにこのことじゃないでしょうか(●^o^●)
7帖以上あり、設備も充実してこの立地☆
一度と言わず二度までも実際に見て頂きたく思います☆
それでは最後に室内写真です☆
11階建ての高層マンションです(●^o^●)
物件詳細


所在地 府中市新町1丁目
最寄駅 中央線 国分寺駅 バス9分 京王ストアー栄町店前 停歩6分
府中線 府中駅 バス7分 京王ストアー栄町店前 停歩6分
賃料 45,000円
共益費 5,000円
敷金 なし
礼金 なし
こちらの物件は、外観がタイル張りのオシャレなマンションになります!!
大通り沿いに建っておりますので、帰宅時は明るい道で帰ることができます♪
しかし、作りがしっかりしているせいか車の音なども気になりません★
路線は、2駅2線利用可能となっておりますので、
用途によって、使い分けることができます!!
まわりにこの建物より背の高い建物が有りませんので日当たり良好です☆
お洗濯物もカラッと乾きます。
玄関ホールも広く、荷物の出し入れも簡単です!
そして何よりもうれしいことは、オートロックが付いていることです★
しつこい新聞の勧誘や、不審者の侵入を防ぐことが出来ます☆






室内も入居者が退去するたびにリフォームしておりますので、大変綺麗なお部屋になっております★
周辺環境も大変良く、スーパー(京王ストア)まで徒歩6分で行くことができます!
そのスーパーの近くにはお弁当屋さんや、コンビニまで有りますので普段の買い物には、まず困りません!
そして、デイツーという大型ホームセンターもあります★
家のまわりから離れずに生活できます★
利便性がとても良い物件なので、是非、御内覧して頂ければと思います♪
所在地 府中市新町1丁目
最寄駅 中央線 国分寺駅 バス9分 京王ストアー栄町店前 停歩6分
府中線 府中駅 バス7分 京王ストアー栄町店前 停歩6分
賃料 45,000円
共益費 5,000円
敷金 なし
礼金 なし
こちらの物件は、外観がタイル張りのオシャレなマンションになります!!
大通り沿いに建っておりますので、帰宅時は明るい道で帰ることができます♪
しかし、作りがしっかりしているせいか車の音なども気になりません★
路線は、2駅2線利用可能となっておりますので、
用途によって、使い分けることができます!!
まわりにこの建物より背の高い建物が有りませんので日当たり良好です☆
お洗濯物もカラッと乾きます。
玄関ホールも広く、荷物の出し入れも簡単です!
そして何よりもうれしいことは、オートロックが付いていることです★
しつこい新聞の勧誘や、不審者の侵入を防ぐことが出来ます☆
室内も入居者が退去するたびにリフォームしておりますので、大変綺麗なお部屋になっております★
周辺環境も大変良く、スーパー(京王ストア)まで徒歩6分で行くことができます!
そのスーパーの近くにはお弁当屋さんや、コンビニまで有りますので普段の買い物には、まず困りません!
そして、デイツーという大型ホームセンターもあります★
家のまわりから離れずに生活できます★
利便性がとても良い物件なので、是非、御内覧して頂ければと思います♪
【 物 件 詳 細 】
☐所在地 府中市天神町4丁目
☐交通 京王線 徒歩25分
☐賃料 42000円
☐管理費 1000円
☐敷金 1ヶ月
☐礼金 1ヶ月
☐間取り 1ROOM
☐築年数 平成8年
【 間 取 り ・ 外 観 】


【 室 内 】
こちらの物件の室内になります!!



玄関を開けてもお部屋の中が丸見えにならない作りになります。
小さな換気窓もついておりますので、風通しもバッチリ!!
南向きで日当り良好です!!
キッチンは電気コンロでミニ冷蔵庫も付いてます!!



お部屋は6帖のフローリングタイプで
収納も広めな押し入れタイプになりますので、お部屋を広くお使いいただけます!
もちろん洗濯機置き場も室内!!
周辺は閑静な住宅街になり、休日等はのんびり過ごしたい方にもオススメ!!
近くにはスーパーもありお買い物も便利です!
京王線と中央線を結ぶバスもありますので、
お出掛けの際も便利です!!
☐所在地 府中市天神町4丁目
☐交通 京王線 徒歩25分
☐賃料 42000円
☐管理費 1000円
☐敷金 1ヶ月
☐礼金 1ヶ月
☐間取り 1ROOM
☐築年数 平成8年
【 間 取 り ・ 外 観 】
【 室 内 】
こちらの物件の室内になります!!
玄関を開けてもお部屋の中が丸見えにならない作りになります。
小さな換気窓もついておりますので、風通しもバッチリ!!
南向きで日当り良好です!!
キッチンは電気コンロでミニ冷蔵庫も付いてます!!
お部屋は6帖のフローリングタイプで
収納も広めな押し入れタイプになりますので、お部屋を広くお使いいただけます!
もちろん洗濯機置き場も室内!!
周辺は閑静な住宅街になり、休日等はのんびり過ごしたい方にもオススメ!!
近くにはスーパーもありお買い物も便利です!
京王線と中央線を結ぶバスもありますので、
お出掛けの際も便利です!!